The Ridgewood
2600+ Sq. Ft. | 2 BD, 2 BA
PLAN FEATURES
- 2 BD, 2 BA
- Comfortable Ranch Living
- Covered Front Porch
- Covered Rear Porch
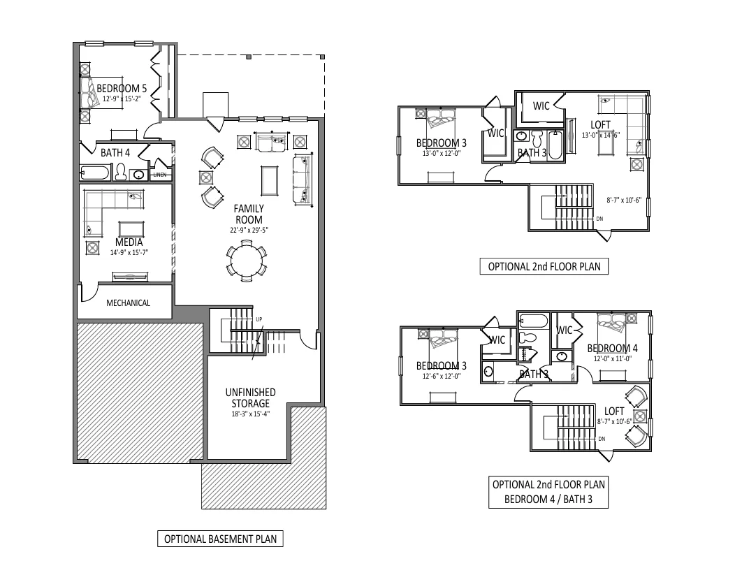
- Optional 2nd Floor Adds up to 4th Bedroom with 3rd Bath
- Optional Basement
- Optional Exterior Fireplace
- Optional Gourmet Kitchen
- Optional Study & Powder Room in lieu of 2nd Bedroom & Bathroom
Welcome home to the Ridgewood. A new ranch home design by Southwyck, the Ridgewood offers gracious main level living complete with a large island kitchen and walk-in pantry overlooking the great room and casual dining as well as a large rear covered porch. The primary bedroom is an inviting retreat complete with a spa-inspired bath featuring dual vanities, a zero-entry shower, and an oversized walk-in closet. An optional second floor can add either one or two additional bedrooms with an additional bath as well.

Browse The Ridgewood
Additional Elevations
×



